Trilocale in vendita

Guastalla, Via Carlo Pisacane
€ 180.000
3 locali 3 locali
106 Mq 106 Mq
1 bagno 1 bagno

Trilocale in vendita

Guastalla, Via Carlo Pisacane

Descrizione annuncio

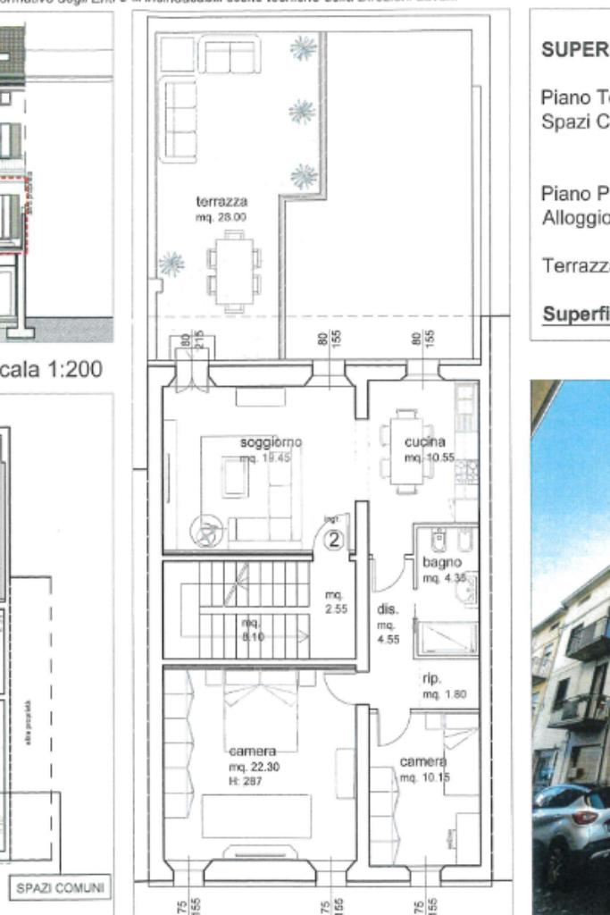
Nel centro di Guastalla, proponiamo un appartamento di 106 mq, situato al primo piano di un edificio con solo tre unità abitative. L'immobile, originariamente costruito nel 1954, è stato completamente ristrutturato nel 2024, garantendo comfort e modernità. La classe energetica A4 assicura un'elevata efficienza energetica, riducendo i costi di gestione. L'appartamento si compone di tre locali: due camere da letto, un soggiorno, cucina e bagno cieco con doccia. Il punto di forza è l'ampio terrazzo, perfetto per momenti di relax all'aperto. La posizione centrale offre la comodità di avere tutti i servizi essenziali a portata di mano, rendendo questa soluzione abitativa ideale per chi cerca praticità e tranquillità.

Per ulteriori informazioni e per visitare l'immobile chiama il 351-5965686 oppure scrivi a

Se oltre all’acquisto della tua nuova casa hai bisogno di vendere quella attuale, contattaci. Le nostre valutazioni sono sempre gratuite e senza impegno.

Ricorda inoltre che i nostri consulenti del credito sono sempre a tua disposizione per offrirti una consulenza personalizzata per mutui e finanziamenti su misura per le tue esigenze.

Visita le nostre pagine social:

Facebook: Gruppo Tecnocasa Novellara

Instagram: tecnocasa_novellara

Mostra tutto

Nelle vicinanze

Trasporto pubblico Trasporto pubblico
Guastalla
Guastalla
220 m
Gualtieri
Gualtieri
2,9 Km
Tagliata
Tagliata
2,7 Km
San Giacomo
San Giacomo
2,8 Km
Ricariche auto elettriche Ricariche auto elettriche
GUASTALLA Cavour | ENELX
100 m
Guastalla Parcheggio Piazzale i ragazzi del Po | EnelX
560 m
Guastalla Castagnoli | EnelX
570 m
Guastalla Via Allende | EnelX
900 m
Gualtieri IV Novembre | EnelX
2,4 Km
Farmacia Farmacia
Parafarmacia Conad
1,1 Km
Ospedali Ospedali
Ospedale Civile di Guastalla
1,0 Km
Supermercati Supermercati
Coop
900 m
Conad
1,0 Km
Sigma
2,8 Km
Negozi Negozi
Biancheria Rovesti
230 m
Bar Bar
Peace in Po
2,0 Km
Ristoranti Ristoranti
Pizzeria da Alberto
880 m
Ristoranti
1,9 Km
Birreria La Quadra, Pizzeria Al Faro
2,0 Km
Osteria La Lumira
2,3 Km
Nuova Taverna sul Po
2,9 Km
Mostra tutto

Caratteristiche

Rif.:
61124804
Piano:
1 di 3 (Piano medio)
Terrazzi:
1
Camere da letto:
2
Arredamento:
Assente
Condizionamento:
Predisposizione impianto
Mostra tutto
Prezzo Prezzo
€ 180.000
Rata mutuo Rata mutuo
€ 841 / mese
Spese annue Spese annue
€ 0
Proponi il tuo prezzoProponi il tuo prezzo
Immobile valutato con T·Valuta

Classe Energetica

A4
A4
A4
A4
A4
A4
A4
A4
A4
EP globale non rinnovabile:
13.39 kW h/m² anno
EP globale rinnovabile:
30.16 kW h/m² anno
EP invernale del fabbricato:
EP estiva del fabbricato:
Anno di costruzione:
1954
Riscaldamento:
Autonomo
Tipo impianto:
A pavimento
Tipo alimentazione:
Metano

Ti interessa visionare l'immobile?

Fissa un appuntamento  Fissa un appuntamento

Richiedi informazioni

Clicca su Leggi per aprire l'informativa
* Questi campi sono obbligatori

Calcola il tuo mutuo

Semplice e senza impegno
Anticipo

( % )
Mutuo

( % )

pochi semplici passi

inserisci i tuoi dati
Questionario completato
Grazie per aver richiesto un appuntamento senza impegno con un nostro Consulente del Credito e Assicurativo.

Hai inserito correttamente tutti i dati necessari e a breve riceverai una e-mail con un link da convalidare per inviare i tuoi dati.
Affiliato
Studio Alfa Srl
Via Cavour, 50 42017 Novellara (RE)

Il nostro staff


  • Antonio Iosso
    Affiliato

  • Samantha Bernabei
    Collaboratrice

  • Alessandra Bassi
    Collaboratrice

  • Massimiliano Carvisiglia
    Collaboratore

  • Michele Giannattasio
    Collaboratore

  • Alex Aldini
    Responsabile

  • Achraf Sadkani
    Collaboratore

  • Gianfranco Iosso
    Coordinatore

  • Raffaele Venosa
    Collaboratore

  • Riccardo Zoboli
    Collaboratore
Via Cavour, 50 42017 Novellara (RE)
Zona: Novellara-Reggiolo-Guastalla-Gualtieri-Luzzara
Mostra su mappa
Orari: LUNEDI -VENERDI: 09:00 -13:00; 15:00 -19:30 SABATO 9:00 - 13:00; 15:00 - 18:00
Affiliato
Studio Alfa Srl
Via Cavour, 50 42017 Novellara (RE)

2026 Tecnocasa Franchising S.p.A. - P. IVA 08365160152 - Via Monte Bianco 60/A 20089 Rozzano (MI). Ogni agenzia ha un proprio titolare ed è autonoma. Privacy policy | Policy utilizzo | Cookie policy