Casa semindipendente in vendita

Guastalla, Via L. Spallanzani
€ 168.000
5 locali 5 locali
155 Mq 155 Mq
2 bagni 2 bagni

Casa semindipendente in vendita

Guastalla, Via L. Spallanzani

Descrizione annuncio

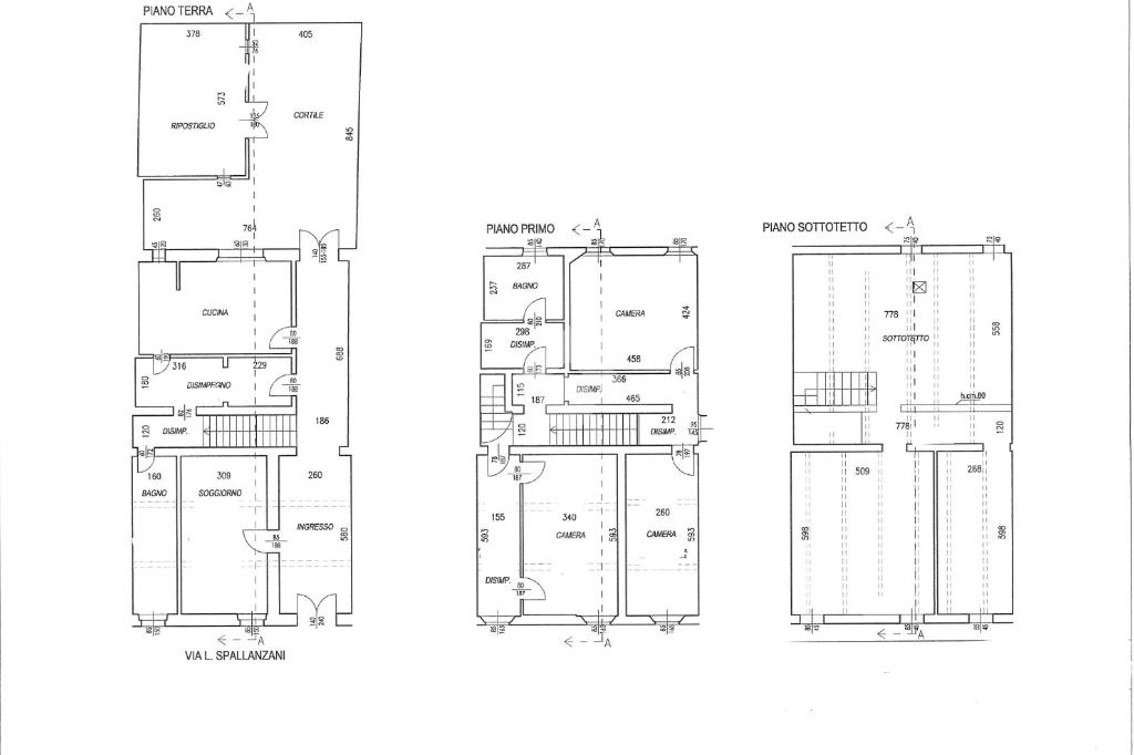
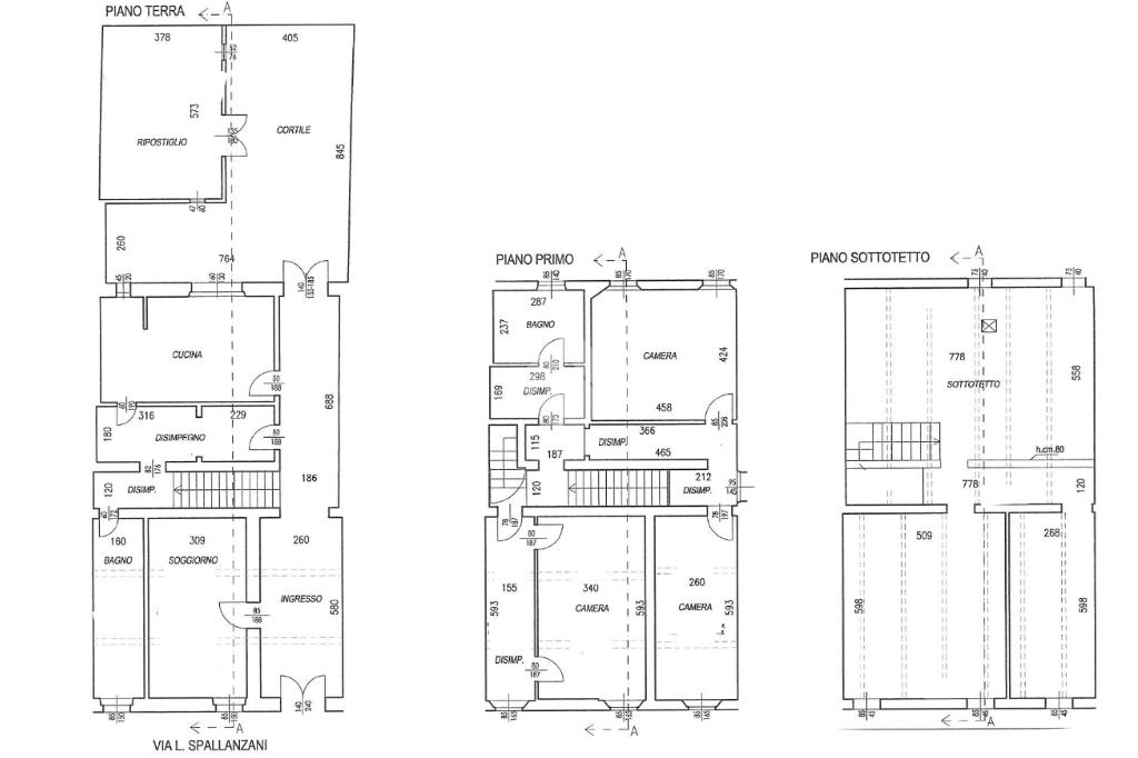
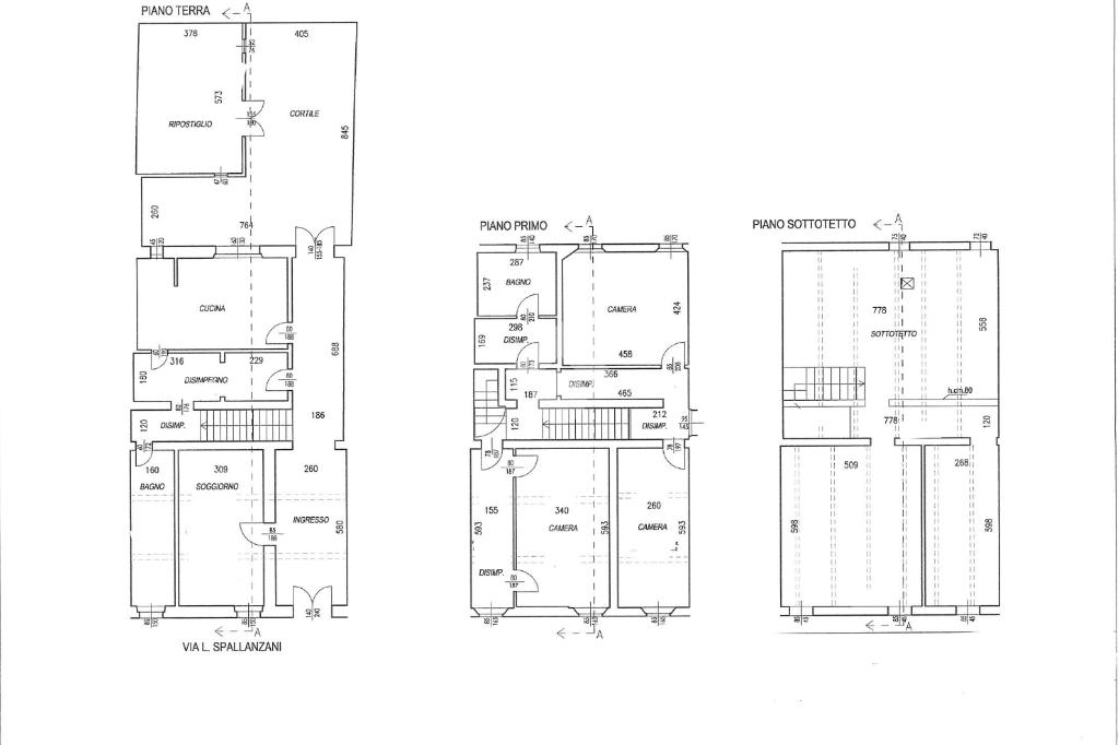
Nel centro storico di Guastalla proponiamo una casa semindipendente perfetta per chi cerca una soluzione abitativa spaziosa e funzionale. Con una superficie commerciale di 155 mq, l'immobile si sviluppa su due livelli, oltre alla soffitta, offrendo ampi spazi interni ideali per una famiglia. La casa dispone di tre camere da letto matrimoniali, soggiorno e un'ampia cucina abitabile. Sono presenti due bagni, uno con vasca ed uno con doccia, garantendo comfort e praticità. Costruita nel 1950, la proprietà conserva il fascino dell'epoca, con piccoli lavori di adeguamento riguardanti gli impianti, eseguiti negli anni. Un riservato cortile interno, in cui è presente anche un locale cantina, offre uno spazio esterno per momenti di relax. La posizione centrale permette di accedere facilmente ai servizi e alle comodità del comune, rendendo questa casa una scelta ideale per chi desidera vivere in un contesto indipendente senza rinunciare alla vicinanza al centro.

Per ulteriori informazioni e per visitare l'immobile chiama il 351-5965686 oppure scrivi a

Se oltre all’acquisto della tua nuova casa hai bisogno di vendere quella attuale, contattaci. Le nostre valutazioni sono sempre gratuite e senza impegno.

Ricorda inoltre che i nostri consulenti del credito sono sempre a tua disposizione per offrirti una consulenza personalizzata per mutui e finanziamenti su misura per le tue esigenze.

Visita le nostre pagine social:

Facebook: Gruppo Tecnocasa Novellara

Instagram: tecnocasa_novellara

Mostra tutto

Nelle vicinanze

Trasporto pubblico Trasporto pubblico
Guastalla
Guastalla
330 m
Gualtieri
Gualtieri
2,8 Km
Tagliata
Tagliata
2,8 Km
San Giacomo
San Giacomo
2,8 Km
Ricariche auto elettriche Ricariche auto elettriche
GUASTALLA Cavour | ENELX
90 m
Guastalla Parcheggio Piazzale i ragazzi del Po | EnelX
510 m
Guastalla Castagnoli | EnelX
660 m
Guastalla Via Allende | EnelX
1,0 Km
Gualtieri IV Novembre | EnelX
2,4 Km
Farmacia Farmacia
Parafarmacia Conad
1,1 Km
Ospedali Ospedali
Ospedale Civile di Guastalla
1,1 Km
Supermercati Supermercati
Coop
970 m
Conad
1,0 Km
Sigma
2,7 Km
Negozi Negozi
Biancheria Rovesti
240 m
Bar Bar
Peace in Po
1,9 Km
Ristoranti Ristoranti
Pizzeria da Alberto
960 m
Ristoranti
1,8 Km
Birreria La Quadra, Pizzeria Al Faro
1,9 Km
Osteria La Lumira
2,2 Km
Nuova Taverna sul Po
2,8 Km
Mostra tutto

Caratteristiche

Rif.:
61117471
Piano:
1 di 2 (Piano su più livelli)
Camere da letto:
3
Arredamento:
Parziale
Condizionamento:
Autonomo
Ascensore:
No
Mostra tutto
Prezzo Prezzo
€ 168.000
Rata mutuo Rata mutuo
€ 785 / mese
Spese annue Spese annue
€ 0
Proponi il tuo prezzoProponi il tuo prezzo
Immobile valutato con T·Valuta

Classe Energetica

G
G
G
G
G
G
G
G
G
Anno di costruzione:
1950
Riscaldamento:
Autonomo
Tipo impianto:
A radiatori
Tipo alimentazione:
Metano

Ti interessa visionare l'immobile?

Fissa un appuntamento  Fissa un appuntamento

Richiedi informazioni

Clicca su Leggi per aprire l'informativa
* Questi campi sono obbligatori

Calcola il tuo mutuo

Semplice e senza impegno
Anticipo

( % )
Mutuo

( % )

pochi semplici passi

inserisci i tuoi dati
Questionario completato
Grazie per aver richiesto un appuntamento senza impegno con un nostro Consulente del Credito e Assicurativo.

Hai inserito correttamente tutti i dati necessari e a breve riceverai una e-mail con un link da convalidare per inviare i tuoi dati.
Affiliato
Studio Alfa Srl
Via Cavour, 50 42017 Novellara (RE)

Il nostro staff


  • Antonio Iosso
    Affiliato

  • Samantha Bernabei
    Collaboratrice

  • Alessandra Bassi
    Collaboratrice

  • Massimiliano Carvisiglia
    Collaboratore

  • Michele Giannattasio
    Collaboratore

  • Alex Aldini
    Responsabile

  • Achraf Sadkani
    Collaboratore

  • Gianfranco Iosso
    Coordinatore

  • Raffaele Venosa
    Collaboratore

  • Riccardo Zoboli
    Collaboratore
Via Cavour, 50 42017 Novellara (RE)
Zona: Novellara-Reggiolo-Guastalla-Gualtieri-Luzzara
Mostra su mappa
Orari: LUNEDI -VENERDI: 09:00 -13:00; 15:00 -19:30 SABATO 9:00 - 13:00; 15:00 - 18:00
Affiliato
Studio Alfa Srl
Via Cavour, 50 42017 Novellara (RE)

2026 Tecnocasa Franchising S.p.A. - P. IVA 08365160152 - Via Monte Bianco 60/A 20089 Rozzano (MI). Ogni agenzia ha un proprio titolare ed è autonoma. Privacy policy | Policy utilizzo | Cookie policy