Casa indipendente in vendita

Guastalla, Via S. Carlo Borromeo
€ 229.000
8 locali 8 locali
184 Mq 184 Mq
3 bagni 3 bagni

Casa indipendente in vendita

Guastalla, Via S. Carlo Borromeo

Descrizione annuncio

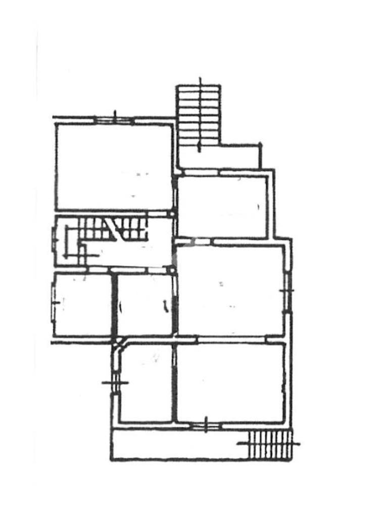
A Guastalla, proponiamo in vendita una casa indipendente di 184 mq, ideale per chi cerca spazio e comfort. Situata in una zona residenziale ben servita, questa abitazione si sviluppa su più livelli e offre un ambiente accogliente e funzionale. Al suo interno, troverete otto locali, tra cui cinque camere da letto, perfette per famiglie numerose o per chi desidera avere spazi dedicati a studio o hobby. La casa dispone di tre bagni, garantendo praticità e comodità per tutti i membri della famiglia. Completano la proprietà tre balconi, che offrono piacevoli affacci, e un giardino privato, ideale per momenti di relax all'aperto. La presenza di due box auto, oltre all'ampia cantina e alla lavanderia, aggiunge ulteriore valore, offrendo spazio per il parcheggio e lo stoccaggio. Costruita nel 1977, la casa è stata ristrutturata nel corso degli anni, fino al 2018, includendo l'installazione di aria condizionata per un comfort ottimale in ogni stagione.

Per ulteriori informazioni e per visitare l'immobile chiama il 351-5965686 oppure scrivi a

Se oltre all’acquisto della tua nuova casa hai bisogno di vendere quella attuale, contattaci. Le nostre valutazioni sono sempre gratuite e senza impegno.

Ricorda inoltre che i nostri consulenti del credito sono sempre a tua disposizione per offrirti una consulenza personalizzata per mutui e finanziamenti su misura per le tue esigenze.

Visita le nostre pagine social:

Facebook: Gruppo Tecnocasa Novellara

Instagram: tecnocasa_novellara

Mostra tutto

Nelle vicinanze

Trasporto pubblico Trasporto pubblico
Guastalla
Guastalla
500 m
Gualtieri
Gualtieri
2,9 Km
San Giacomo
San Giacomo
2,2 Km
Tagliata
Tagliata
2,7 Km
Ricariche auto elettriche Ricariche auto elettriche
Guastalla Via Allende | EnelX
620 m
GUASTALLA Cavour | ENELX
680 m
Guastalla Castagnoli | EnelX
770 m
Guastalla Parcheggio Piazzale i ragazzi del Po | EnelX
1,2 Km
Gualtieri IV Novembre | EnelX
2,5 Km
Farmacia Farmacia
Parafarmacia Conad
920 m
Ospedali Ospedali
Ospedale Civile di Guastalla
800 m
Supermercati Supermercati
Coop
320 m
Conad
900 m
Sigma
2,8 Km
Negozi Negozi
Biancheria Rovesti
600 m
Bar Bar
Peace in Po
2,7 Km
Ristoranti Ristoranti
Pizzeria da Alberto
270 m
Ristoranti
2,5 Km
Birreria La Quadra, Pizzeria Al Faro
2,7 Km
Osteria La Lumira
2,8 Km
Mostra tutto

Caratteristiche

Rif.:
61176861
Piano:
1 di 2 (Piano su più livelli)
Box:
2
Balconi:
3
Camere da letto:
5
Arredamento:
Parziale
Mostra tutto
Prezzo Prezzo
€ 229.000
Rata mutuo Rata mutuo
€ 1.069 / mese
Spese annue Spese annue
€ 0
Proponi il tuo prezzoProponi il tuo prezzo

Classe Energetica

G
G
G
G
G
G
G
G
G
EP globale non rinnovabile:
357.58 kW h/m² anno
EP globale rinnovabile:
0.98 kW h/m² anno
EP invernale del fabbricato:
EP estiva del fabbricato:
Anno di costruzione:
1977
Riscaldamento:
Autonomo
Tipo impianto:
A radiatori
Tipo alimentazione:
Metano

Ti interessa visionare l'immobile?

Fissa un appuntamento  Fissa un appuntamento

Richiedi informazioni

Clicca su Leggi per aprire l'informativa
* Questi campi sono obbligatori

Calcola il tuo mutuo

Semplice e senza impegno
Anticipo

( % )
Mutuo

( % )

pochi semplici passi

inserisci i tuoi dati
Questionario completato
Grazie per aver richiesto un appuntamento senza impegno con un nostro Consulente del Credito e Assicurativo.

Hai inserito correttamente tutti i dati necessari e a breve riceverai una e-mail con un link da convalidare per inviare i tuoi dati.
Affiliato
Studio Alfa Srl
Via Cavour, 50 42017 Novellara (RE)

Il nostro staff


  • Antonio Iosso
    Affiliato

  • Samantha Bernabei
    Collaboratrice

  • Alessandra Bassi
    Collaboratrice

  • Massimiliano Carvisiglia
    Collaboratore

  • Michele Giannattasio
    Collaboratore

  • Alex Aldini
    Responsabile

  • Achraf Sadkani
    Collaboratore

  • Gianfranco Iosso
    Coordinatore

  • Raffaele Venosa
    Collaboratore

  • Riccardo Zoboli
    Collaboratore
Via Cavour, 50 42017 Novellara (RE)
Zona: Novellara-Reggiolo-Guastalla-Gualtieri-Luzzara
Mostra su mappa
Orari: LUNEDI -VENERDI: 09:00 -13:00; 15:00 -19:30 SABATO 9:00 - 13:00; 15:00 - 18:00
Affiliato
Studio Alfa Srl
Via Cavour, 50 42017 Novellara (RE)

2026 Tecnocasa Franchising S.p.A. - P. IVA 08365160152 - Via Monte Bianco 60/A 20089 Rozzano (MI). Ogni agenzia ha un proprio titolare ed è autonoma. Privacy policy | Policy utilizzo | Cookie policy