Casa semindipendente in vendita

Luzzara, Piazza Adolfo Tedeschi
€ 110.000
4 locali 4 locali
100 Mq 100 Mq
1 bagno 1 bagno

Casa semindipendente in vendita

Luzzara, Piazza Adolfo Tedeschi

Descrizione annuncio

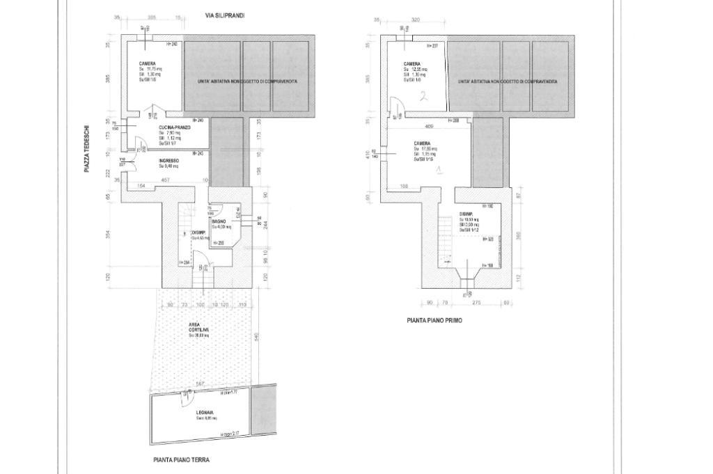
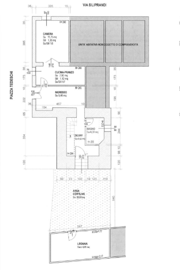
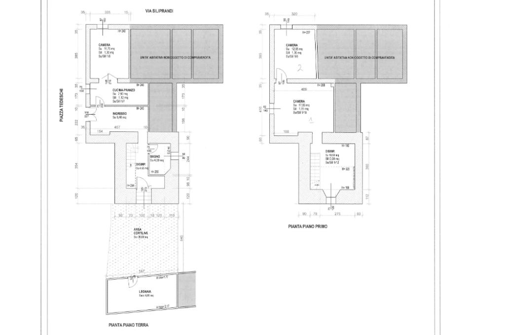
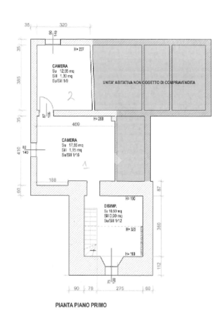
Nel centro del comune di Luzzara, proponiamo in vendita una casa semindipendente di 100 mq, ideale per chi cerca una soluzione abitativa con ingresso indipendente. Questa porzione di casa, costruita nel 1930 e ristrutturata negli anni '60, si sviluppa su due livelli e offre spazi ben distribuiti. Al piano terra, l'ingresso conduce alla cucina separata dal soggiorno e al corridoio che da cui si accede ai servizi ed al discreto cortile privato, perfetto per godere di momenti di relax. Al piano superiore, si trovano due camere da letto luminose, precedute da un ampio disimpegno. La proprietà è completata dall'ampia cantina raggiungibile dal cortile esterno privato. Situata nel centro di Luzzara, questa casa ha visto il rifacimento del tetto nel 2012 ed è libera subito, pronta per accogliere i nuovi proprietari. Una soluzione ideale per chi desidera vivere in un contesto tranquillo, senza rinunciare alla comodità dei servizi cittadini.

Per ulteriori informazioni e per visitare l'immobile chiama il 351-5965686 oppure scrivi a

Se oltre all’acquisto della tua nuova casa hai bisogno di vendere quella attuale, contattaci. Le nostre valutazioni sono sempre gratuite e senza impegno.

Ricorda inoltre che i nostri consulenti del credito sono sempre a tua disposizione per offrirti una consulenza personalizzata per mutui e finanziamenti su misura per le tue esigenze.

Visita le nostre pagine social:

Facebook: Gruppo Tecnocasa Novellara

Instagram: tecnocasa_novellara

Mostra tutto

Nelle vicinanze

Trasporto pubblico Trasporto pubblico
Luzzara
Luzzara
690 m
Ricariche auto elettriche Ricariche auto elettriche
Enel X Municipio di Luzzara
210 m
Mostra tutto

Caratteristiche

Rif.:
61178329
Piano:
1 di 2 (Piano su più livelli)
Camere da letto:
2
Arredamento:
Assente
Condizionamento:
Assente
Ascensore:
No
Mostra tutto
Prezzo Prezzo
€ 110.000
Rata mutuo Rata mutuo
€ 514 / mese
Spese annue Spese annue
€ 0
Proponi il tuo prezzoProponi il tuo prezzo
Immobile valutato con T·Valuta

Classe Energetica

G
G
G
G
G
G
G
G
G
EP globale non rinnovabile:
351.97 kW h/m² anno
EP globale rinnovabile:
0.84 kW h/m² anno
EP invernale del fabbricato:
EP estiva del fabbricato:
Anno di costruzione:
1930
Riscaldamento:
Autonomo
Tipo impianto:
A radiatori
Tipo alimentazione:
Metano

Ti interessa visionare l'immobile?

Fissa un appuntamento  Fissa un appuntamento

Richiedi informazioni

Clicca su Leggi per aprire l'informativa
* Questi campi sono obbligatori

Calcola il tuo mutuo

Semplice e senza impegno
Anticipo

( % )
Mutuo

( % )

pochi semplici passi

inserisci i tuoi dati
Questionario completato
Grazie per aver richiesto un appuntamento senza impegno con un nostro Consulente del Credito e Assicurativo.

Hai inserito correttamente tutti i dati necessari e a breve riceverai una e-mail con un link da convalidare per inviare i tuoi dati.
Affiliato
Studio Alfa Srl
Via Cavour, 50 42017 Novellara (RE)

Il nostro staff


  • Antonio Iosso
    Affiliato

  • Samantha Bernabei
    Collaboratrice

  • Alessandra Bassi
    Collaboratrice

  • Massimiliano Carvisiglia
    Collaboratore

  • Michele Giannattasio
    Collaboratore

  • Alex Aldini
    Responsabile

  • Achraf Sadkani
    Collaboratore

  • Gianfranco Iosso
    Coordinatore

  • Raffaele Venosa
    Collaboratore

  • Riccardo Zoboli
    Collaboratore
Via Cavour, 50 42017 Novellara (RE)
Zona: Novellara-Reggiolo-Guastalla-Gualtieri-Luzzara
Mostra su mappa
Orari: LUNEDI -VENERDI: 09:00 -13:00; 15:00 -19:30 SABATO 9:00 - 13:00; 15:00 - 18:00
Affiliato
Studio Alfa Srl
Via Cavour, 50 42017 Novellara (RE)

2026 Tecnocasa Franchising S.p.A. - P. IVA 08365160152 - Via Monte Bianco 60/A 20089 Rozzano (MI). Ogni agenzia ha un proprio titolare ed è autonoma. Privacy policy | Policy utilizzo | Cookie policy