Bifamiliare in vendita

Novellara, Str. dei Boschi
€ 470.000
9 locali 9 locali
300 Mq 300 Mq
4 bagni 4 bagni

Bifamiliare in vendita

Novellara, Str. dei Boschi

Descrizione annuncio

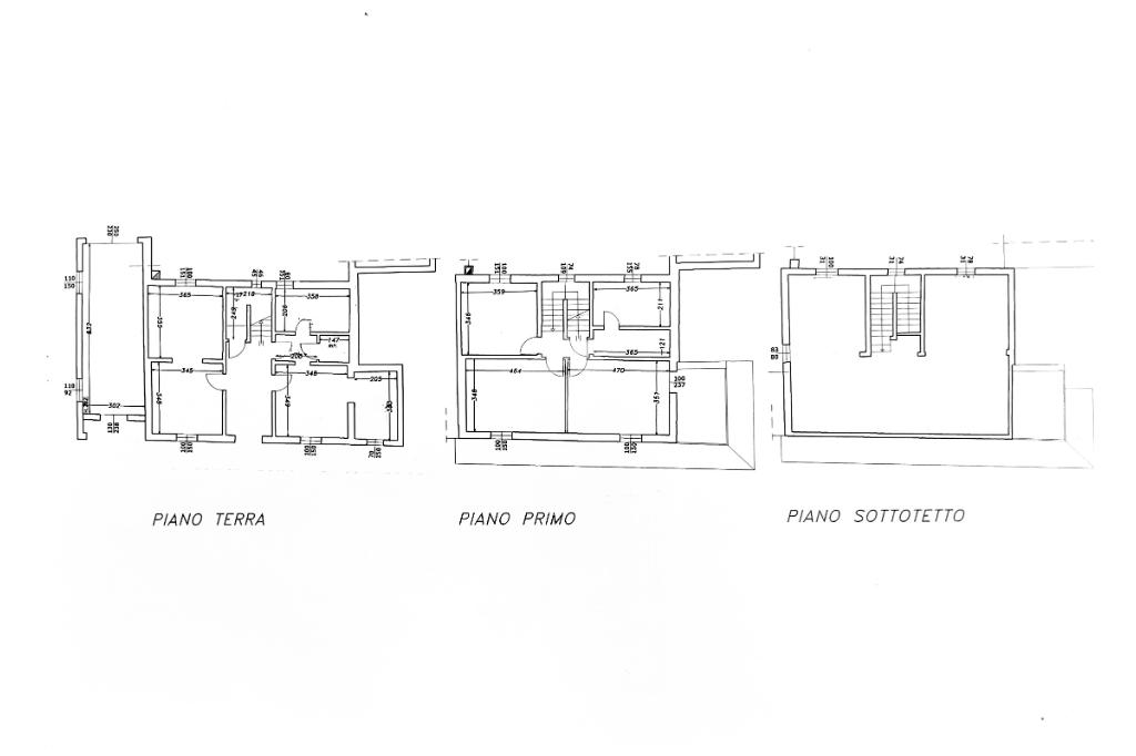
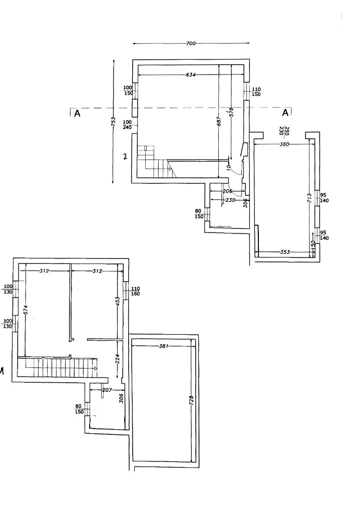
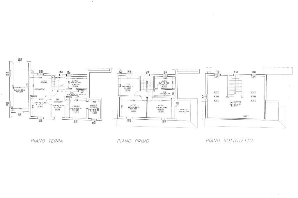
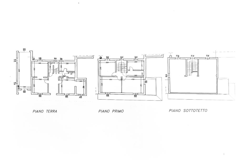
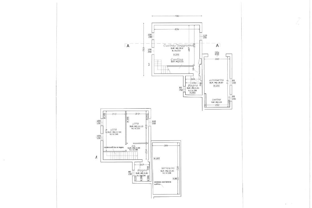
Nel comune di Novellara, è disponibile per la vendita una villa bifamiliare che offre ampi spazi e comfort. L'immobile, di 300 mq, si sviluppa su più livelli e comprende nove locali, tra cui cinque camere da letto e quattro bagni, garantendo spazio sufficiente per ogni esigenza abitativa. La villa è stata costruita nella sua porzione fronte strada nel 1970 e successivamente stata oggetto di completa ristrutturazione; la seconda porzione è stata edificata nel 2004. L'immobile si presenta in ottime condizioni d'uso. Un ampio giardino di tremila metri quadri completa la proprietà, offrendo un'oasi di tranquillità e uno spazio ideale per attività all'aperto. Completano la proprietà due box auto doppi ed il cortile interno che offre la possibilità di usufruire di vari posti auto. È possibile valutare la vendita separata delle due unità abitative, offrendo così un'opportunità di investimento flessibile e personalizzabile. Entrambe le porzioni sono complete di impianto di climatizzazione.

- La prima porzione, offerta al prezzo unitario di € 250.000, è composta da ingresso, sala da pranzo/soggiorno con camino, cucina abitabile, bagno e ripostiglio al piano terra;

due camere matrimoniali di cui una con terrazzo, una camera 3/4 e un bagno al primo piano, oltre al pratico locale sottotetto oltre al box doppio al piano terra a completamento dell'immobile.

- La seconda porzione è composta da ingresso su ampio salone con angolo cottura da cui si ha accesso diretto alla doppia autorimessa (utilizzata attualmente come taverna) e bagno;

due camere matrimoniali, bagno al primo piano e piccolo sottotetto, al prezzo unitario di € 220.000

Per ulteriori informazioni e per visitare l'immobile chiama il 351-5965686 oppure scrivi a

Se oltre all’acquisto della tua nuova casa hai bisogno di vendere quella attuale, contattaci. Le nostre valutazioni sono sempre gratuite e senza impegno.

Ricorda inoltre che i nostri consulenti del credito sono sempre a tua disposizione per offrirti una consulenza personalizzata per mutui e finanziamenti su misura per le tue esigenze.

Visita le nostre pagine social:

Facebook: Gruppo Tecnocasa Novellara

Instagram: tecnocasa_novellara

Mostra tutto

Nelle vicinanze

Trasporto pubblico Trasporto pubblico
Stazione di Novellara
Stazione di Novellara
1,4 Km
Novellara
Novellara
1,5 Km
San Giovanni della Fossa
San Giovanni della Fossa
2,9 Km
Ricariche auto elettriche Ricariche auto elettriche
Stazione di Novellara | EnelX
1,5 Km
Municipio di Novellara EnelX
2,0 Km
Novellara Viale dello Sport | EnelX
2,5 Km
Farmacia Farmacia
Farmacia
1,3 Km
Farmacia Nuova
1,8 Km
Supermercati Supermercati
Conad
1,7 Km
Ristoranti Ristoranti
Imperfetto
1,3 Km
Ristoranti
1,8 Km
La Conchiglia Ristorante Pizzeria
2,5 Km
Don Divino Ristorante Pizzeria
2,6 Km
Kamiyama
2,6 Km
Mostra tutto

Caratteristiche

Rif.:
61096394
Piano:
1 di 2 (Piano su più livelli)
Box:
2
Terrazzi:
1
Camere da letto:
5
Arredamento:
Parziale
Mostra tutto
Prezzo Prezzo
€ 470.000
Rata mutuo Rata mutuo
€ 2.195 / mese
Spese annue Spese annue
€ 0
Proponi il tuo prezzoProponi il tuo prezzo

Classe Energetica

E
E
E
E
E
E
E
E
E
Anno di costruzione:
1970
Riscaldamento:
Autonomo
Tipo impianto:
A radiatori
Tipo alimentazione:
Metano

Ti interessa visionare l'immobile?

Fissa un appuntamento  Fissa un appuntamento

Richiedi informazioni

Clicca su Leggi per aprire l'informativa
* Questi campi sono obbligatori

Calcola il tuo mutuo

Semplice e senza impegno
Anticipo

( % )
Mutuo

( % )

pochi semplici passi

inserisci i tuoi dati
Questionario completato
Grazie per aver richiesto un appuntamento senza impegno con un nostro Consulente del Credito e Assicurativo.

Hai inserito correttamente tutti i dati necessari e a breve riceverai una e-mail con un link da convalidare per inviare i tuoi dati.
Affiliato
Studio Alfa Srl
Via Cavour, 50 42017 Novellara (RE)

Il nostro staff


  • Antonio Iosso
    Affiliato

  • Samantha Bernabei
    Collaboratrice

  • Alessandra Bassi
    Collaboratrice

  • Massimiliano Carvisiglia
    Collaboratore

  • Michele Giannattasio
    Collaboratore

  • Alex Aldini
    Responsabile

  • Achraf Sadkani
    Collaboratore

  • Gianfranco Iosso
    Coordinatore

  • Raffaele Venosa
    Collaboratore

  • Riccardo Zoboli
    Collaboratore
Via Cavour, 50 42017 Novellara (RE)
Zona: Novellara-Reggiolo-Guastalla-Gualtieri-Luzzara
Mostra su mappa
Orari: LUNEDI -VENERDI: 09:00 -13:00; 15:00 -19:30 SABATO 9:00 - 13:00; 15:00 - 18:00
Affiliato
Studio Alfa Srl
Via Cavour, 50 42017 Novellara (RE)

2026 Tecnocasa Franchising S.p.A. - P. IVA 08365160152 - Via Monte Bianco 60/A 20089 Rozzano (MI). Ogni agenzia ha un proprio titolare ed è autonoma. Privacy policy | Policy utilizzo | Cookie policy