Porzione di bifamiliare in vendita

Novellara, Via Nova
€ 339.000
5 locali 5 locali
180 Mq 180 Mq
2 bagni 2 bagni

Porzione di bifamiliare in vendita

Novellara, Via Nova

Descrizione annuncio

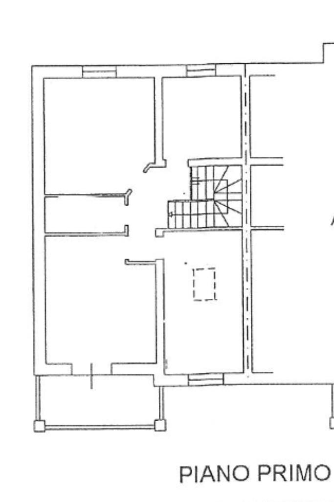
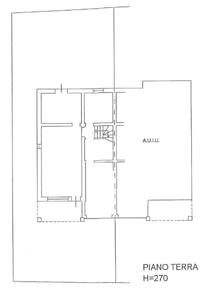
A Novellara, proponiamo in vendita una porzione di bifamiliare che coniuga comfort e modernità. Costruita nel 2013, questa abitazione si sviluppa su due livelli, offrendo ampi spazi per ogni esigenza. Con una superficie di 180 mq, l'immobile si distingue per la sua efficienza energetica, essendo in Classe A, e per la presenza di aria condizionata, garantendo un ambiente confortevole in ogni stagione. All'interno, la casa dispone di cinque locali ben distribuiti, tra cui tre camere da letto, di cui una con terrazzo e due bagni, ideali per una famiglia. Al piano terra un luminoso soggiorno e la cucina che si apre sull'accogliente giardino, perfetto per momenti di relax all'aperto. L'immobile è inoltre dotato di cantina e autorimessa, con accesso diretto all'abitazione. Questa soluzione abitativa rappresenta un'opportunità unica per chi cerca una residenza moderna e funzionale a Novellara.

Per ulteriori informazioni e per visitare l'immobile chiama il 351-5965686 oppure scrivi a

Se oltre all’acquisto della tua nuova casa hai bisogno di vendere quella attuale, contattaci. Le nostre valutazioni sono sempre gratuite e senza impegno.

Ricorda inoltre che i nostri consulenti del credito sono sempre a tua disposizione per offrirti una consulenza personalizzata per mutui e finanziamenti su misura per le tue esigenze.

Visita le nostre pagine social:

Facebook: Gruppo Tecnocasa Novellara

Instagram: tecnocasa_novellara

Mostra tutto

Nelle vicinanze

Trasporto pubblico Trasporto pubblico
Novellara
Novellara
480 m
Stazione di Novellara
Stazione di Novellara
540 m
Ricariche auto elettriche Ricariche auto elettriche
Stazione di Novellara | EnelX
580 m
Municipio di Novellara EnelX
1,1 Km
Novellara Viale dello Sport | EnelX
1,4 Km
Farmacia Farmacia
Farmacia
740 m
Farmacia Nuova
850 m
Supermercati Supermercati
Conad
830 m
Ristoranti Ristoranti
Ristoranti
810 m
Kamiyama
1,1 Km
La Conchiglia Ristorante Pizzeria
1,2 Km
Don Divino Ristorante Pizzeria
1,4 Km
Imperfetto
1,6 Km
Mostra tutto

Caratteristiche

Rif.:
61175569
Piano:
1 di 2 (Piano su più livelli)
Box:
1
Terrazzi:
1
Camere da letto:
3
Arredamento:
Parziale
Mostra tutto
Prezzo Prezzo
€ 339.000
Rata mutuo Rata mutuo
€ 1.583 / mese
Spese annue Spese annue
€ 0
Proponi il tuo prezzoProponi il tuo prezzo

Classe Energetica

A1
A1
A1
A1
A1
A1
A1
A1
A1
EP invernale del fabbricato:
EP estiva del fabbricato:
Anno di costruzione:
2013
Riscaldamento:
Autonomo
Tipo impianto:
A pavimento
Tipo alimentazione:
Metano

Ti interessa visionare l'immobile?

Fissa un appuntamento  Fissa un appuntamento

Richiedi informazioni

Clicca su Leggi per aprire l'informativa
* Questi campi sono obbligatori

Calcola il tuo mutuo

Semplice e senza impegno
Anticipo

( % )
Mutuo

( % )

pochi semplici passi

inserisci i tuoi dati
Questionario completato
Grazie per aver richiesto un appuntamento senza impegno con un nostro Consulente del Credito e Assicurativo.

Hai inserito correttamente tutti i dati necessari e a breve riceverai una e-mail con un link da convalidare per inviare i tuoi dati.
Affiliato
Studio Alfa Srl
Via Cavour, 50 42017 Novellara (RE)

Il nostro staff


  • Antonio Iosso
    Affiliato

  • Samantha Bernabei
    Collaboratrice

  • Alessandra Bassi
    Collaboratrice

  • Massimiliano Carvisiglia
    Collaboratore

  • Michele Giannattasio
    Collaboratore

  • Alex Aldini
    Responsabile

  • Achraf Sadkani
    Collaboratore

  • Gianfranco Iosso
    Coordinatore

  • Raffaele Venosa
    Collaboratore

  • Riccardo Zoboli
    Collaboratore
Via Cavour, 50 42017 Novellara (RE)
Zona: Novellara-Reggiolo-Guastalla-Gualtieri-Luzzara
Mostra su mappa
Orari: LUNEDI -VENERDI: 09:00 -13:00; 15:00 -19:30 SABATO 9:00 - 13:00; 15:00 - 18:00
Affiliato
Studio Alfa Srl
Via Cavour, 50 42017 Novellara (RE)

2026 Tecnocasa Franchising S.p.A. - P. IVA 08365160152 - Via Monte Bianco 60/A 20089 Rozzano (MI). Ogni agenzia ha un proprio titolare ed è autonoma. Privacy policy | Policy utilizzo | Cookie policy